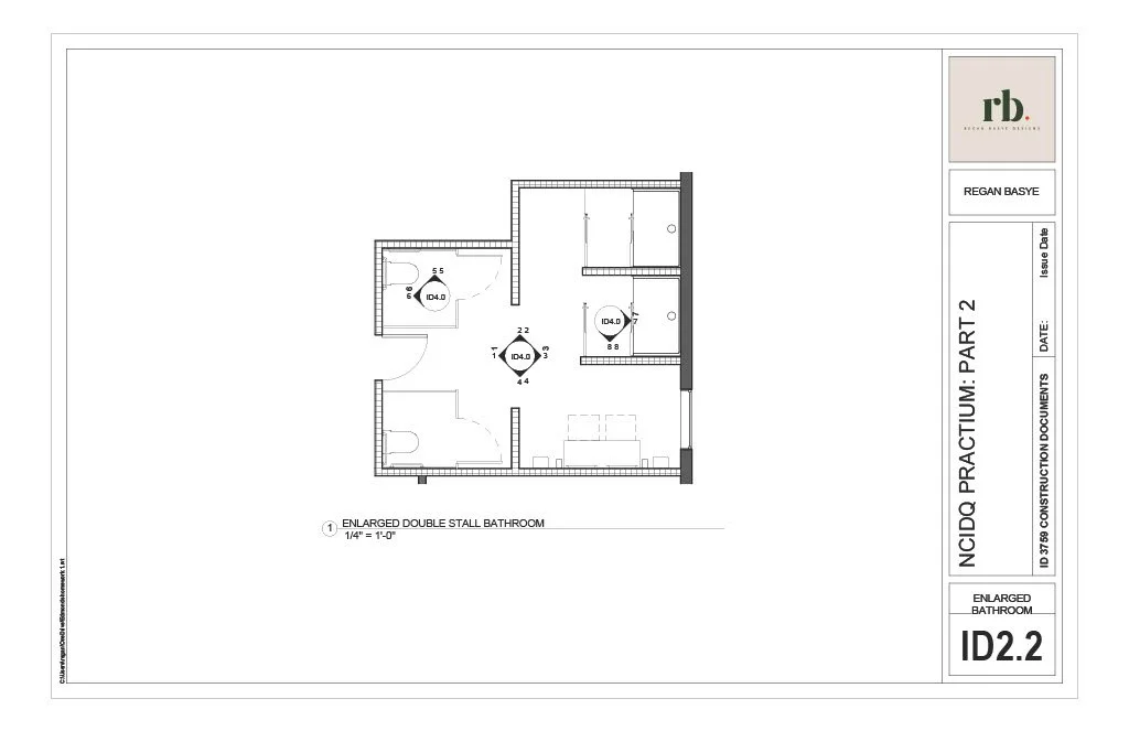
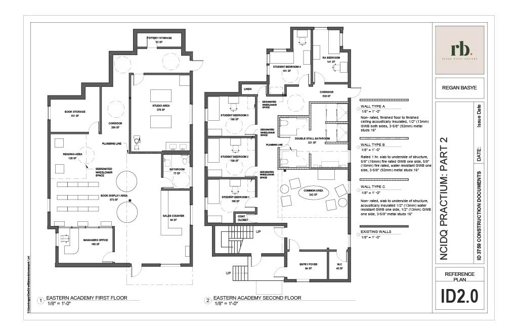
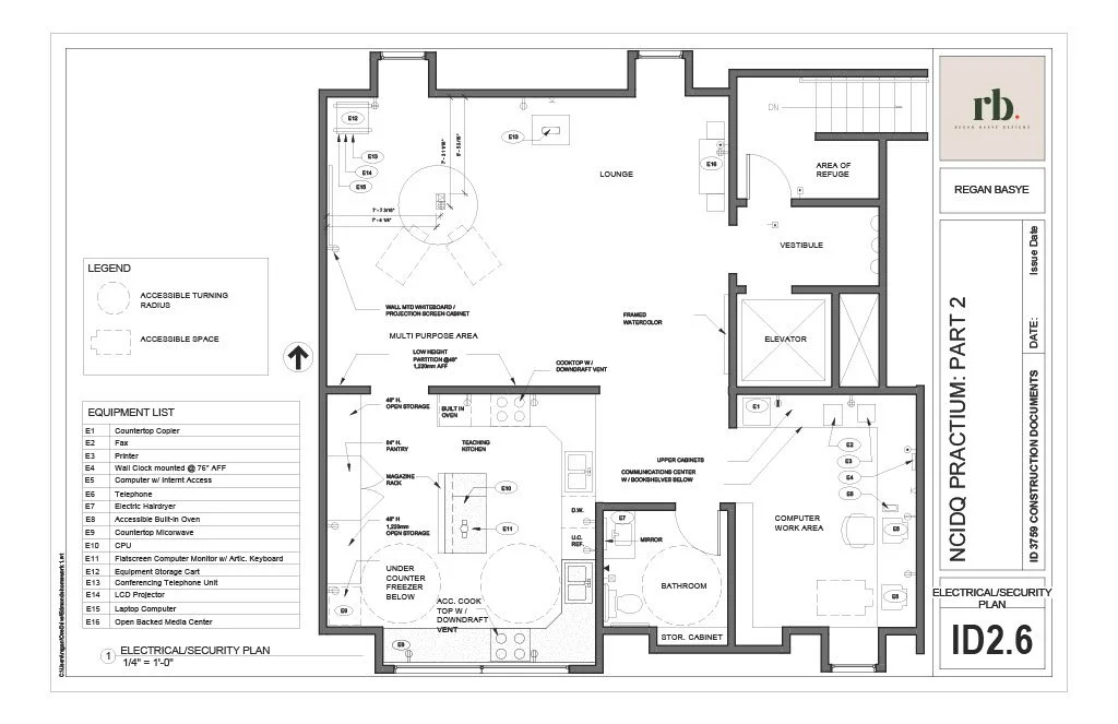
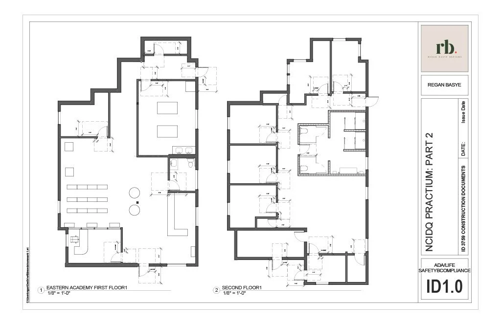
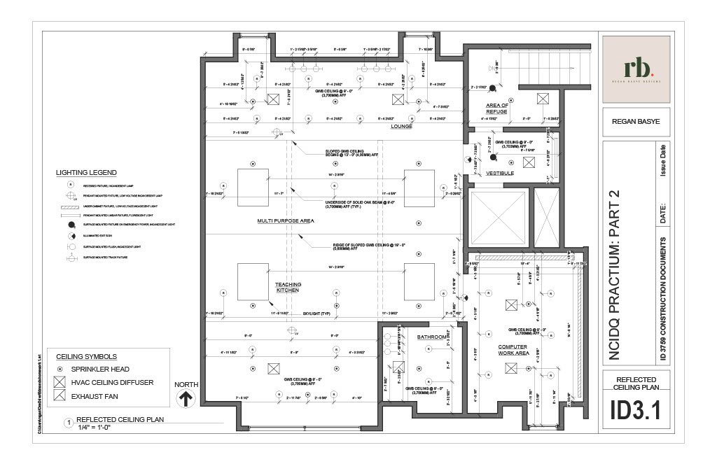
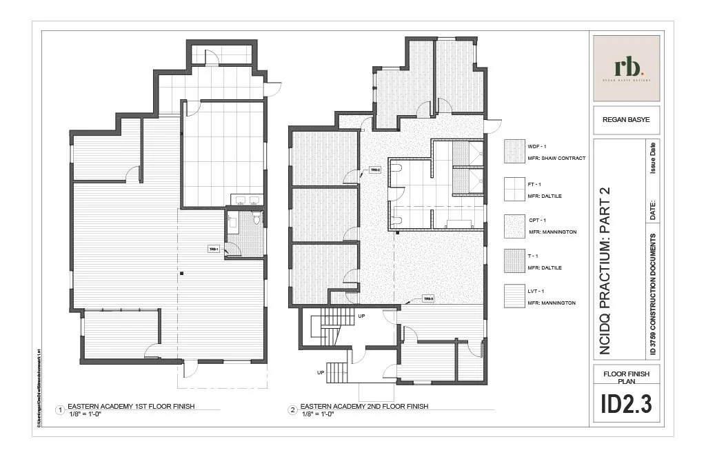
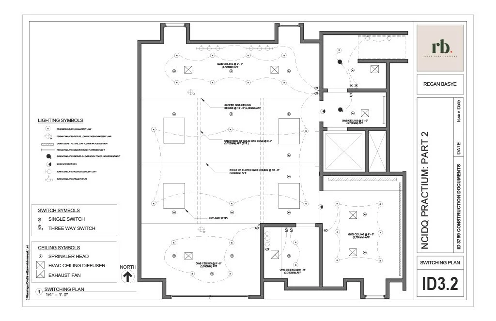
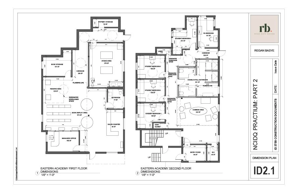
CONSTRUCTION DOCUMENTS

I completed the Design Practicum for my final for Construction Documents. I transformed a historic three- story residence into a fully accessible mixed use space featuring a bookstore, pottery studio, and student housing, while preserving its original character.

Software’s Used:

Revit

Previous
Previous

Hotel Ventinove + Limone E Lino

Next
Next

Modern Brew Coffee Bar